top of page
t m s
i n s a a t

SILIVRI VILLA CONSTRUCTION 2018
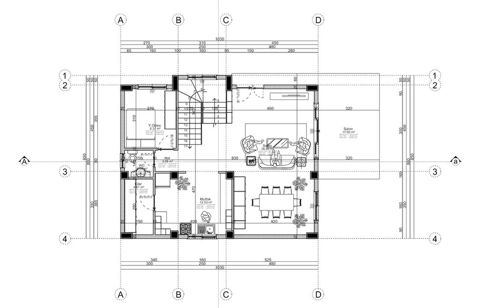
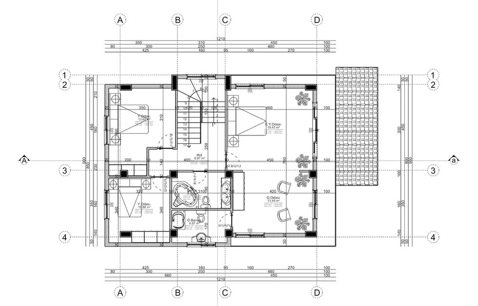
It is a villa project located in a seaside site in the coastal part of Silivri. It is a transformation project that sets an example to other buildings by using the new, modern materials and forms to demolish the structure, which is now in a state where the robustness of the other buildings in the settlement area is being discussed.
bottom of page




